PROJEKTE
WETTBEWERBE
IDEEN
BÜRO
PRESSE
 
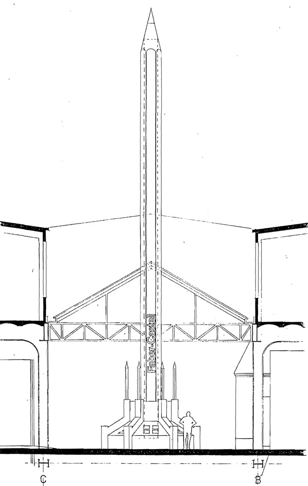
Schnitt