PROJEKTE
WETTBEWERBE
IDEEN
BÜRO
PRESSE
SCHULEN
KINDERGÄRTEN
KLINIKEN
MUSEEN
GEWERBE
WOHNUNGSBAU
DENKMALPFLEGE
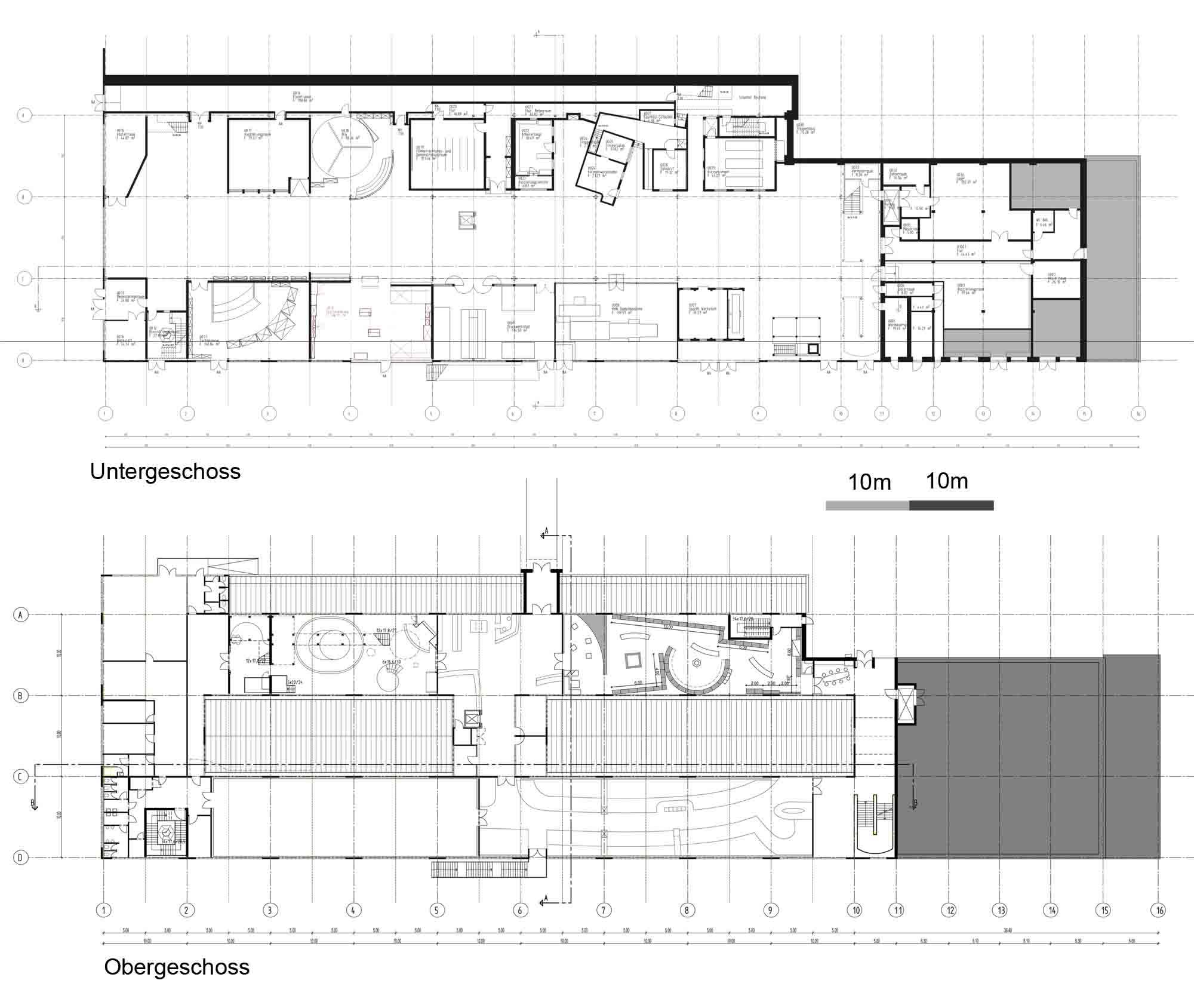
Museum Industriekultur - Grundrisse